icono simple blanco y amarillo

Casos de Éxito

Explora nuestros casos de éxito y descubre cómo diferentes estrategias de inversión han generado resultados sólidos, rentables y sostenibles a lo largo del tiempo.

Personal Shopper Inmobiliario

ROCAFORT

Villaverde. Madrid. 2026
Total de Inversión:201.655€
Tipo de alquilerResidencial
Rentabilidad anual bruta:7,1%
Rentabilidad anual neta:6,7%
Amortización de inversión:14,9 años
Cashflow anual:13.536€

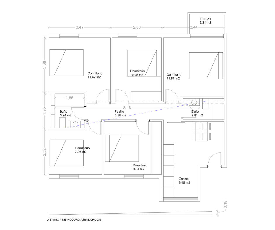
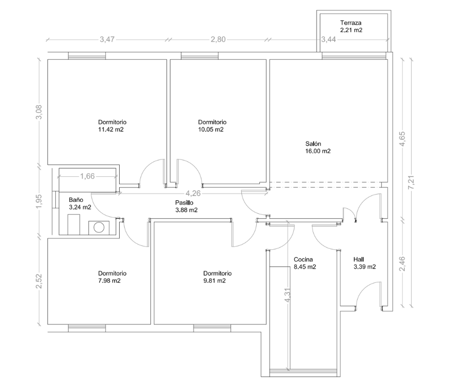
Piso luminoso con cocina conectada a la sala, 3 habitaciones y un baño
Baño modernizado con espejo con iluminación integrada con mobiliario nuevo.

ESCRIBANOS

Villaverde Alto. Madrid. 2026
Total de Inversión:205.511€
Tipo de alquilerResidencial
Rentabilidad anual bruta:6,4%
Rentabilidad anual neta:5,9%
Amortización de inversión:16,8 años
Cashflow anual:12.192 €

Cocina sin demodelar con electrodomésticos desactualizados
Cocina remodelada con electrodomésticos y superficie de encimera nuevos

JUAN SALAS

Usera. Madrid. 2025
Total de Inversión:279.292€
Tipo de alquilerResidencial
Rentabilidad anual bruta:5,4%
Rentabilidad anual neta:5,1%
Amortización de inversión:19,6 años
Cashflow anual:14.244 €

Cocina sin remodelar con muebles desactualizados
Cocina remodelada con buena entrada de luz y electrodomésticos nuevos

ENCARNACIÓN

Villaverde Bajo. Madrid. 2025
Total de Inversión:259.360
Tipo de alquilerEstudios
Rentabilidad anual bruta:10,7%
Rentabilidad anual neta:10,2%
Amortización de inversión:9,8 años
Cashflow anual:26.434 €

CARMEN BORDIU

Villaverde Alto. Madrid. 2025
Total de Inversión:199.659€
Tipo de alquilerResidencial
Rentabilidad anual bruta:6,6%
Rentabilidad anual neta:6,0%
Amortización de inversión:16,8 años
Cashflow anual:5.274 €

ALBERTO PALACIOS

Villaverde Alto. Madrid. 2025
Total de Inversión:201.057
Tipo de alquilerResidencial
Rentabilidad anual bruta:6,0%
Rentabilidad anual neta:5,6%
Amortización de inversión:17,8 años
Cashflow anual:11.290 €

TORREJON

Fuenlabrada. Madrid. 2024
Total de Inversión:179.210 €
Tipo de alquilerHabitaciones
Rentabilidad anual bruta:11,2%
Rentabilidad anual neta:8,7%
Amortización de inversión:11.5 años
Cashflow anual:9.492 €

PONT DE MOLINS

Puente de Vallecas. Madrid. 2024
Total de Inversión:158.939 €
Tipo de alquilerResidencial
Rentabilidad anual bruta:6,5%
Rentabilidad anual neta:5,9%
Amortización de inversión:16,8 años
Cashflow anual:9.318 €

House Flipping

Valdemoro

Valdemoro - Duque de Lerma 7. 2025
Beneficio:18.935€
Importe de Inversión:111.382€
Importe de Venta:130.317€
Rentabilidad:17%

Piso
clock
06 meses con financiación
Piso de 81m2. Proyecto de desokupación con su adecuación (pintar, sanear y reparaciones). *Imágenes del antes y después

Madrid

Madrid - Alfredo Aleix 44. 2025
Beneficio:35.608€
Importe de Inversión:142.392€
Importe de Venta:178.000€
Rentabilidad:25,01%

Piso
clock
02 meses con financiación
Piso de 64m2. En buenas condiciones se toma poseción como proyecto de herencia para, porterior evaluación, su venta. El proyecto tiene una duración final de 02 meses. *Imágenes del antes.

Madrid

Madrid. Calle Alzola 10. 2025
Beneficio:47.818€
Importe de Inversión:132.182€
Importe de Venta:180.000€
Rentabilidad:36,18%

Piso
clock
06 meses comprador al contado
Piso de 91m2. Proyecto de desokupación y adecuación (reparaciones, sanear y pintar) del inmueble. El proyecto tuvo una duración de 06 meses. *Imágenes del antes.

Alcorcón

Alcorcón. Calle Mayor 54. 2025
Beneficio:28.076€
Importe de Inversión:141.924€
Importe de Venta:170.000€
Rentabilidad:19,78%

Piso
clock
02 meses comprador al contado
Piso espacioso de 94m2. Contó con un proyecto de 02 meses de duración donde se realizó un acondicionamiento general del inmuble finalizado con un acabado de pintura. *Imágenes del antes.

Parla – Alfonso X

Parla. Alfonso X El Sabio 19. 2025
Beneficio:32.159€
Importe de Inversión:92.841€
Importe de Venta:125.000€
Rentabilidad:34,64%

Piso
clock
07 meses con financiación
Piso espacioso de 78m2 Se realiza un preceso de desokupación y posterior saneamiento del inmueble. El proyecto de 07 meses cuenta con un lavado de cara del espacio. *Imágenes del antes.

Madrid – Uceda

Madrid. Uceda 25. 2024
Beneficio:13.724€
Importe de Inversión:75.276€
Importe de Venta:89.000€
Rentabilidad:18,23%

Piso
clock
02 meses comprador al contado
Piso de 29m2 ubicado en la primera planta. Proyecto de adecuación completo: con cocina y fontanería, sistema eléctrico, y adecuación de baño.

Jerez de la Frontera

Jerez de la Frontera. Calle Catalanes 4. 2023
Beneficio:70.500€
Importe de Inversión:99.500€
Importe de Venta:170.000€
Rentabilidad:70%

Edificio
clock
07 meses con financiación
Edificio de 240 m2. 4 Apartamentos. Proyecto de desocupación, con limpieza, restyling de las zonas comunes. Proyecto con recorrido, cliente comprador inversor para explotar en alquiler.

Valdemoro

Valdemoro. Calle Libertad 23. 2023
Beneficio:28.158€
Importe de Inversión:78.842€
Importe de Venta:107.000€
Rentabilidad:36%

Piso
clock
04 meses con financiación
Proyecto sin reforma, solo se limpió y se pintó el inmueble para sanearlo y ponerlo presentable al mercado.